Riqualificazione energetica via Fatebenefratelli - Milano

Date 2021
Location Milano
Value € 1.620.000,00
Client Private
Project 2021-2022
Realization -
Category Residential

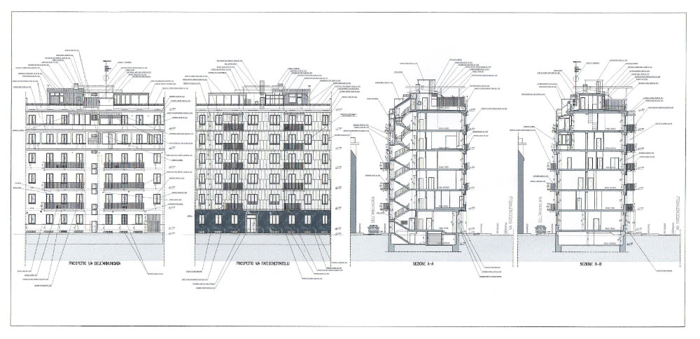
Studio di fattibilità riqualificazione energetica Condominio via Fatebenefratelli, 12 a Milano

L’intervento di efficientamento del Condominio di via Fatebenefratelli 12 prevede sia la realizzazione di un cappotto su tutte le facciate a tutti i piani, sia la posa di isolante sui balconi e sotto-balconi, la sostituzione di infissi esterni, comprese tapparelle e cassonetti, l’isolamento dell’ultimo piano con posa di isolante sulla pavimentazione dei lastrici solari privati e per la parte comune. Con la realizzazione del cappotto su via Fatebenefratelli è previsto di realizzare anche una facciata ventilata con nuovo rivestimento in gres porcellanato in sostituzione del rivestimento in travertino esistente.

È inoltre prevista una nuova centrale termica con sonde geotermiche alimentata elettricamente al piano interrato e il rifacimento dell’ascensore padronale con fermata al piano interrato. La realizzazione di un campo fotovoltaico.

Sono inoltre previsti interventi non rientranti nel superbonus, ma comunque detraibili fino al 50% con opzione di sconto in fattura fino al 50% ovvero la realizzazione di nuovi balconi su via Fatebenefratelli più grandi di quelli esistenti a partire dal 2° piano con la realizzazione di guaine in corrispondenza dei balconi e dei lastrici solari e il rifacimento dei parapetti dei balconi e dei lastrici solari esistenti sia su via Fatebenefratelli che su via dell’Annunciata.