Via Bardolino 33 (MI)

Date 2021
Location Milano
Value € 2.800.000,00
Client Private
Project 2020-2021
Realization -
Category Residential

Rifacimento opere interne ed esterne con Superbonus 110%

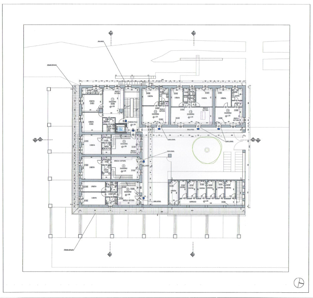
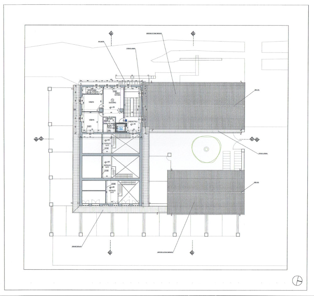
Il progetto di riqualificazione edilizia con Superbonus prevede il recupero del ”Mulino della Pace”

Considerato che si tratta di un edificio collabente, l’intervento di “recupero” ha previsto la demolizione totale del fabbricato e la sua ricostruzione in sagoma con nuovi requisiti antisismici.

Il fabbricato, inizialmente costituito di n. 5 subalterni, è stato trasformato in un condominio di 15 unità immobiliari residenziali costituite da bilocali e trilocali nel rispetto dell’architettura e dei materiali esistenti in particolare prevedendo il recupero della vecchia pala del mulino.