Via Bardolino 31 (MI)

Date 2021
Location Milano
Value € 800.000,00
Client Private
Project 2020-2021
Realization -
Category Residential

Rifacimento opere interne ed esterne con Superbonus 110% edificio 2

Il progetto riguarda il rifacimento della coibentazione del tetto e del manto in tegole oltre che il rifacimento della facciata oltre alla realizzazione del cappotto, l’adeguamento edilizio dal punto di vista della sua trasformazione in edificio residenziale con la realizzazione di un vespaio areato e la creazione di due appartamenti trilocal.

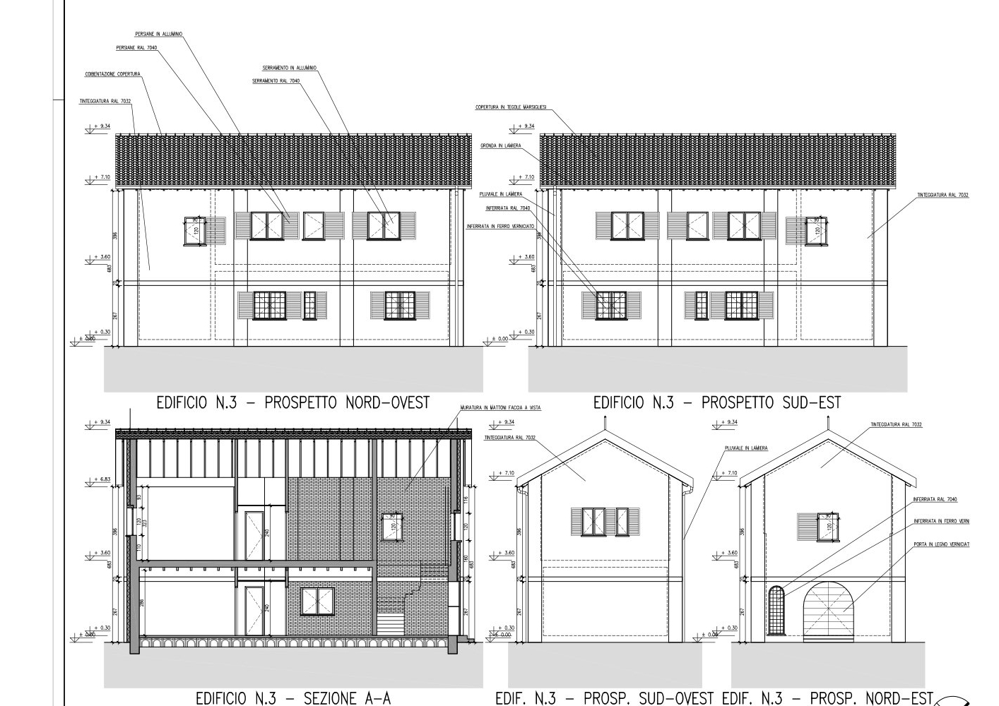
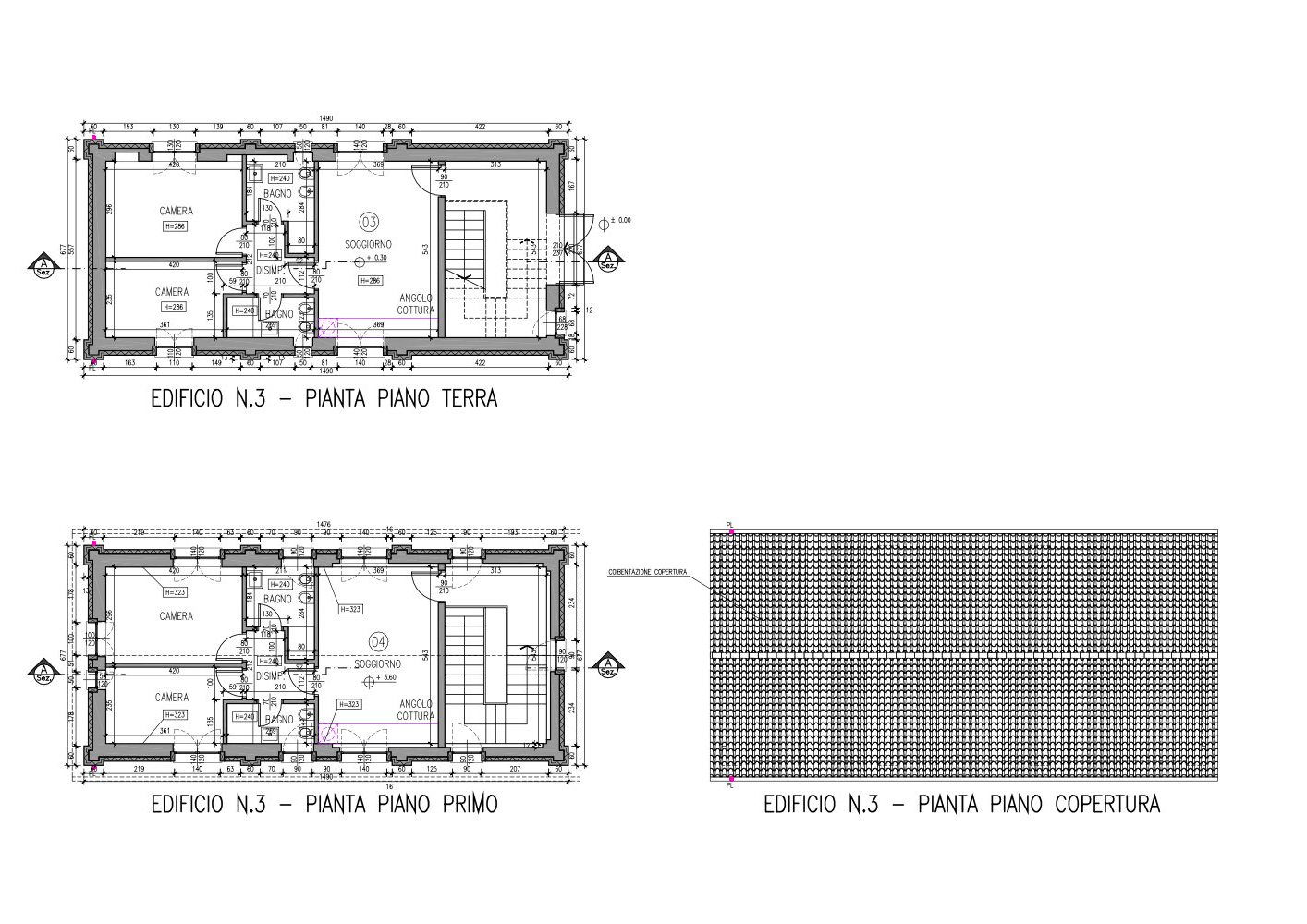
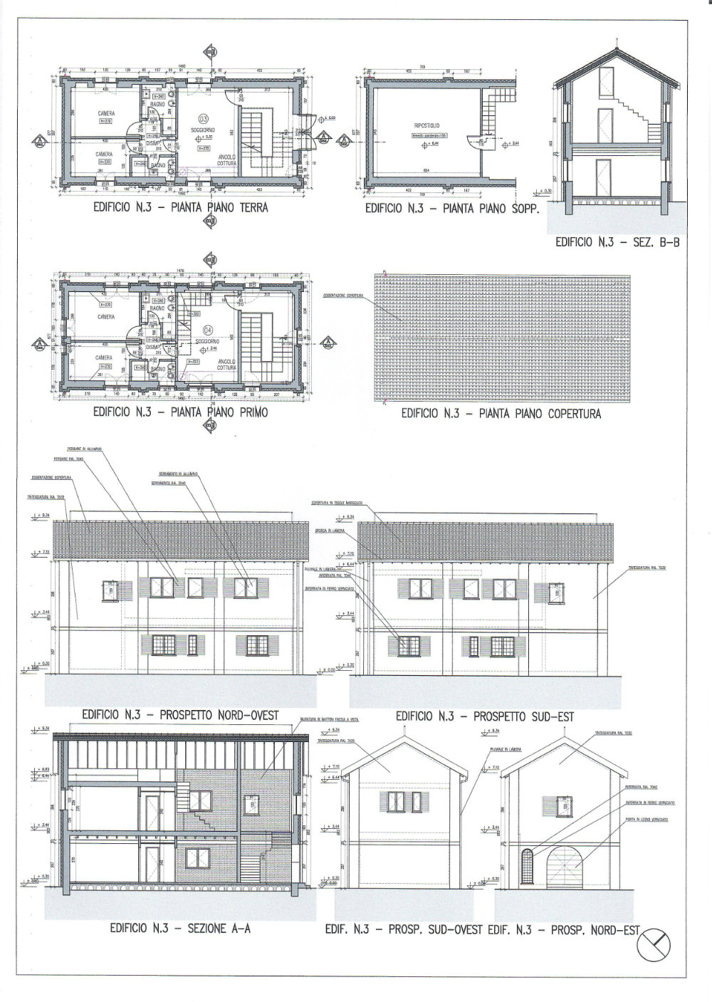
Rifacimento opere interne ed esterne con Superbonus 110% edificio 3

Considerato che si tratta di un edificio a rustico, l’intervento di “recupero” ha previsto, oltre alla realizzazione del cappotto e all’isolamento termico della copertura, l’adeguamento edilizio dal punto di vista della sua trasformazione in edificio residenziale con la realizzazione di un vespaio areato e la creazione di due appartamenti (un bilocale e un trilocale).