Realizzazione scala Basiglio

Date 2021
Location San Basiglio (MI)
Value € 10.000,00
Client Private
Project 2021
Realization 2021
Category Refurbishment

Realizzazione scala Basiglio

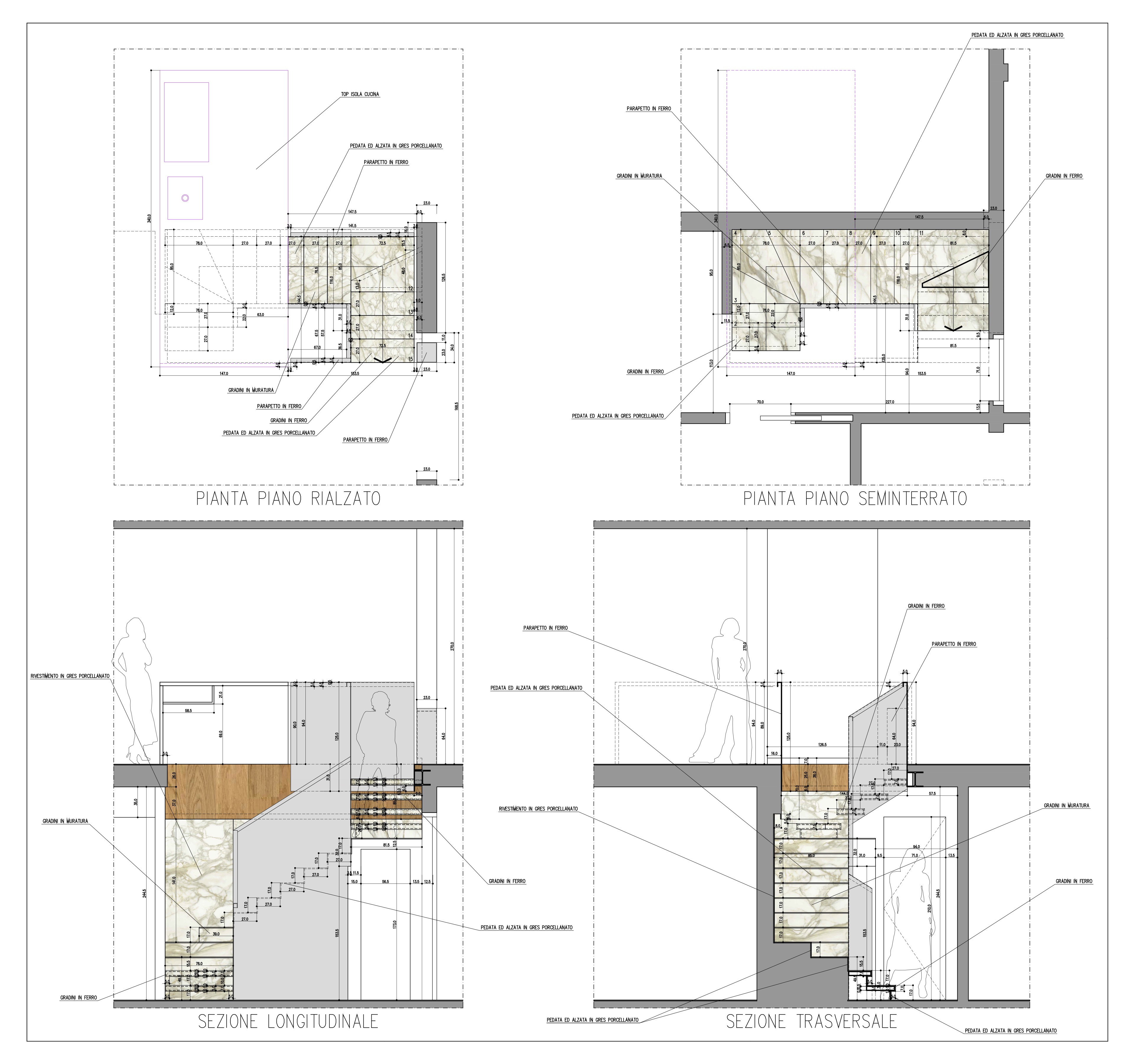
Il progetto riguarda il completamento della realizzazione di una scala interna ad un appartamento per il collegamento di due livelli. Si è mantenuto il più possibile di quanto già presente provvedendo a “rivestire” e completare la scala stessa in gres porcellanato ed acciaio verniciato nel rispetto del contesto esistente.